Project Description:
Conversion of existing dwelling into x4 residential flats
Project Value:
£175kServices:
RIBA Stages 1-3
Existing Ground & First Floor Plan
Existing First & Roof Plan
Proposed Ground & First Floor Plan
Proposed Second & Roof Plan
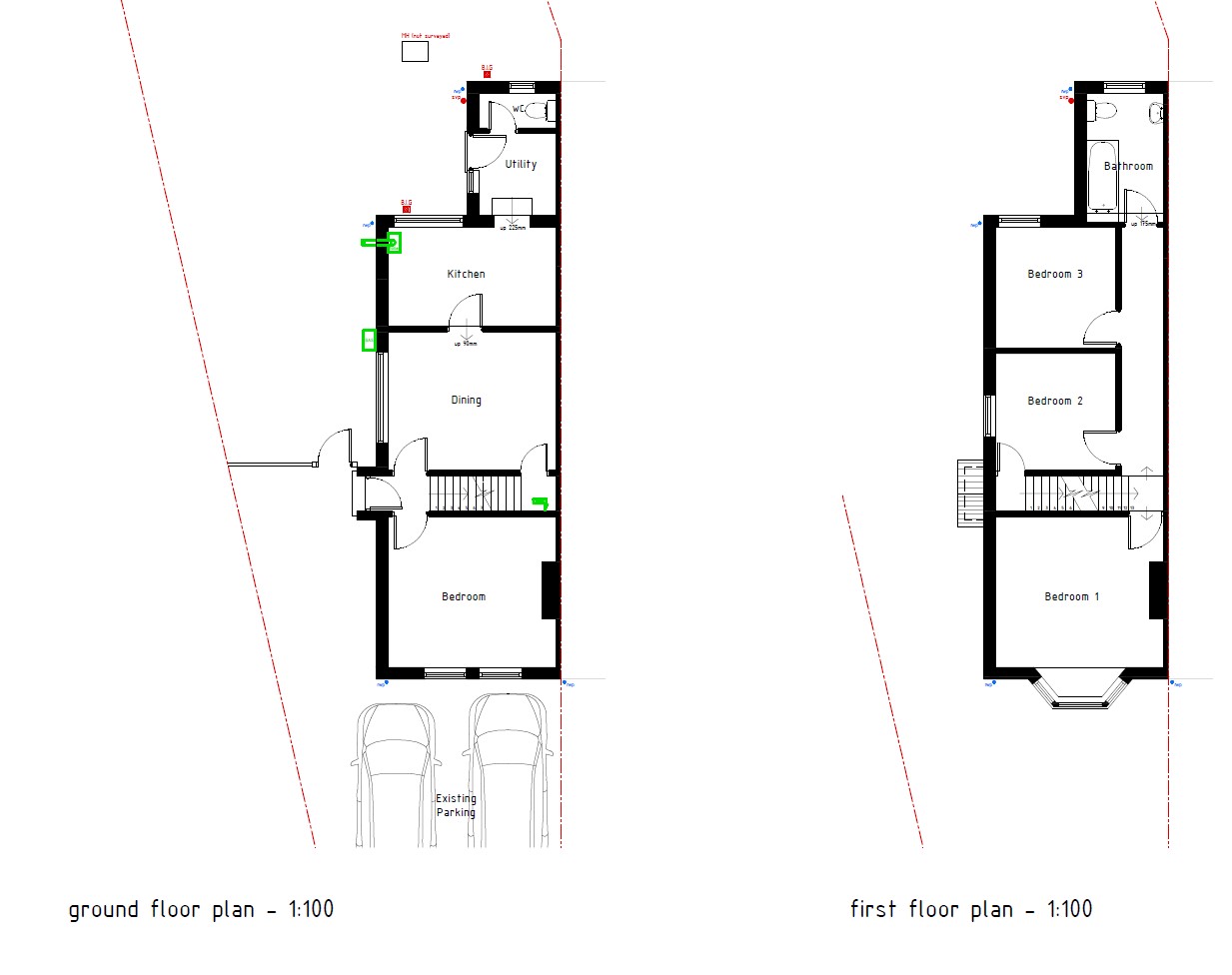
Proposed Ground Floor Plan
Propsoed First Floor Plan
Proposed Second Floor Plan










