Demolition of Existing Public House to x2 Residential Dwellings
Project Description:
Demolition of vacant Public House building and erection of x2 Residential dwellings within Green Belt Site.
Project Value:
£425kServices:
RIBA Stages 1-3

Existing Public House

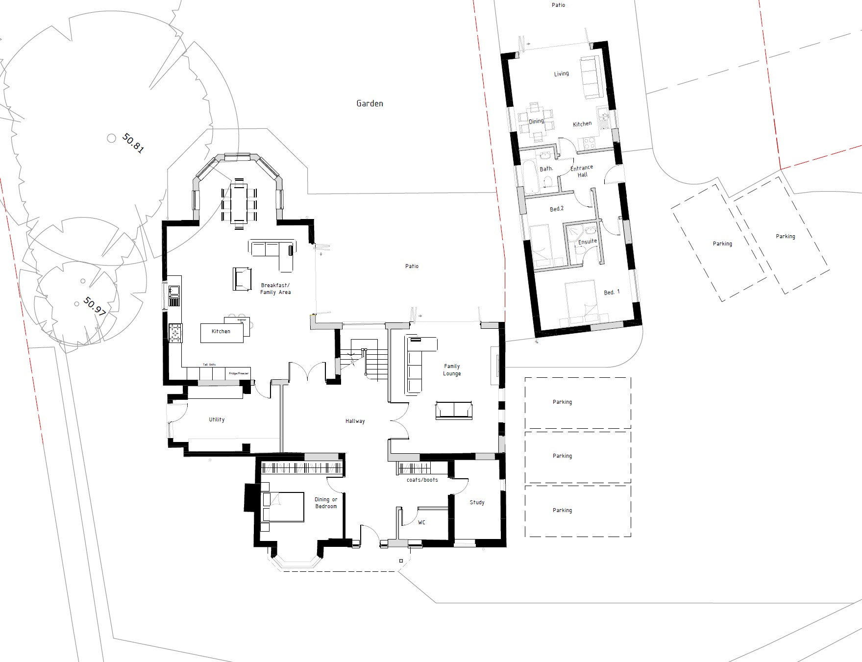
Proposed Ground Floor Plans

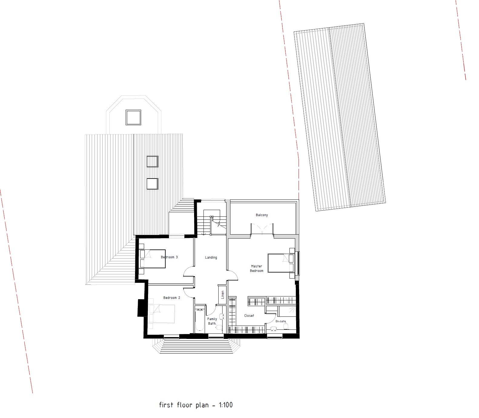
Proposed First Floor plan










