Creativity

Innovation

Originality

Imagination

 

Salient

Salient is an excellent design with a fresh approach for the ever-changing Web. Integrated with Gantry 5, it is infinitely customizable, incredibly powerful, and remarkably simple.

Download

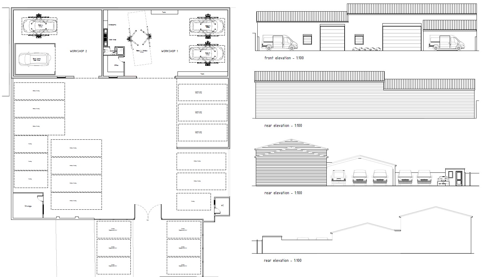
Workshops/Auto Repair Service Centre

Project Description: 

New workshops to accommodate:

- MOT Class 7 service centre

- Auto repair works

- Covered parking area

Project Value:

£140k

Services:

RIBA Stages 1-4