New Build Dwelling
Project Description:
New 3 bed chalet bungalow style modern dwelling.
Project Value:
£275kServices:
RIBA Stages 1-3



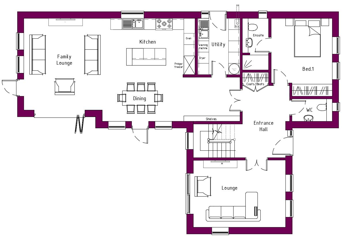
Proposed Ground Floor Plan

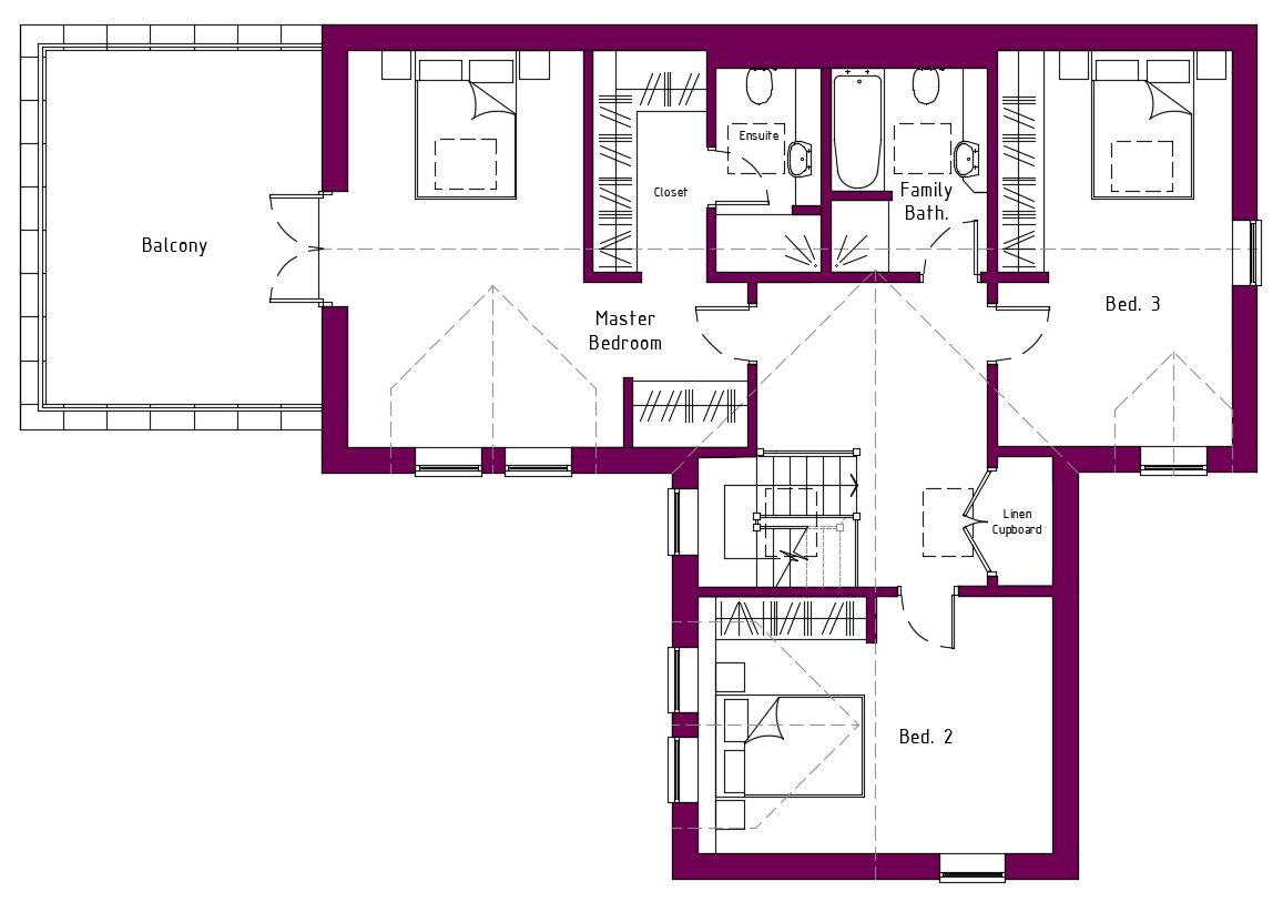
Propsoed First Floor Plan

Propsoed Elevations











Salient is an excellent design with a fresh approach for the ever-changing Web. Integrated with Gantry 5, it is infinitely customizable, incredibly powerful, and remarkably simple.
Download