Project Description:
Conversion of existing two dwellings into x8 residential flats + a new rear dwelling
Project Value:
£450kServices:
RIBA Stages 1-4

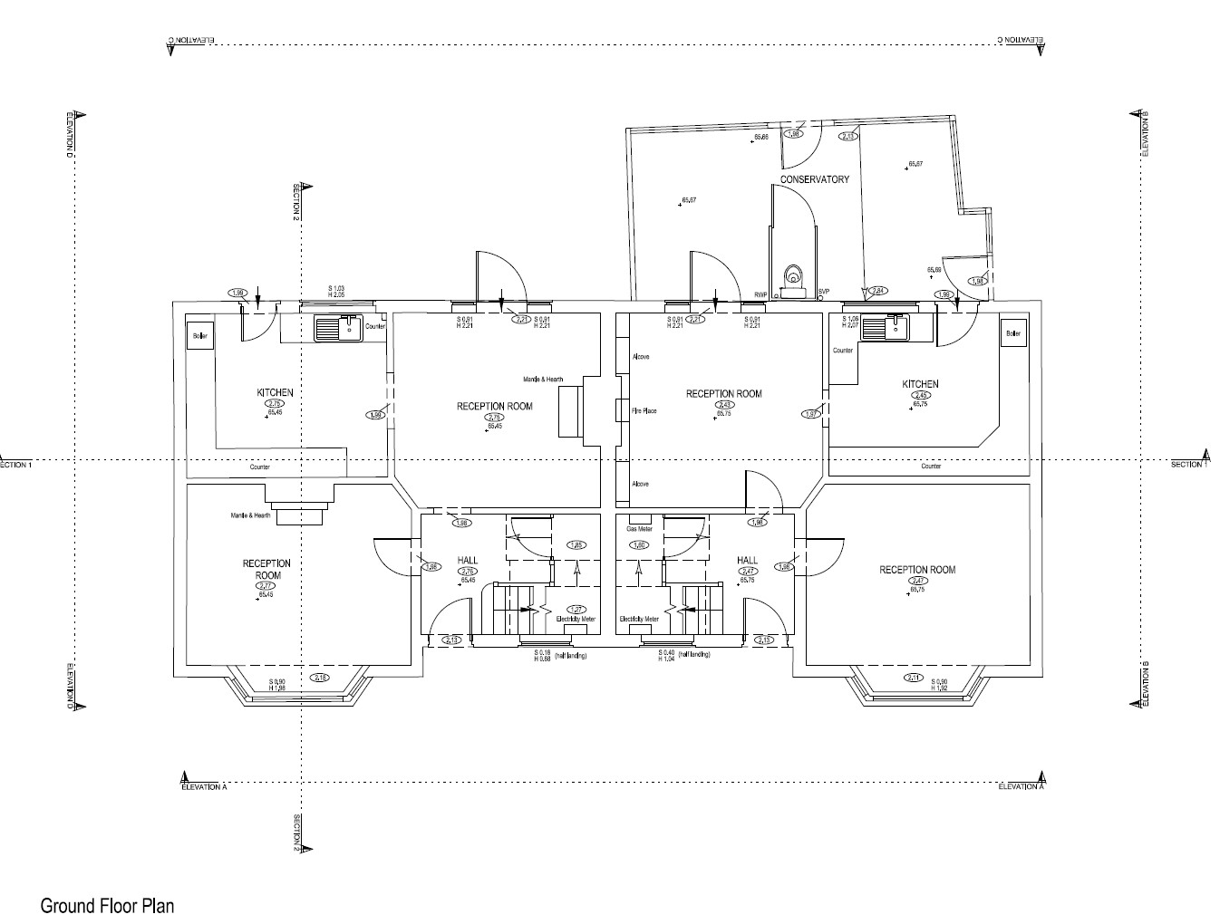
Existing Ground Floor Plan

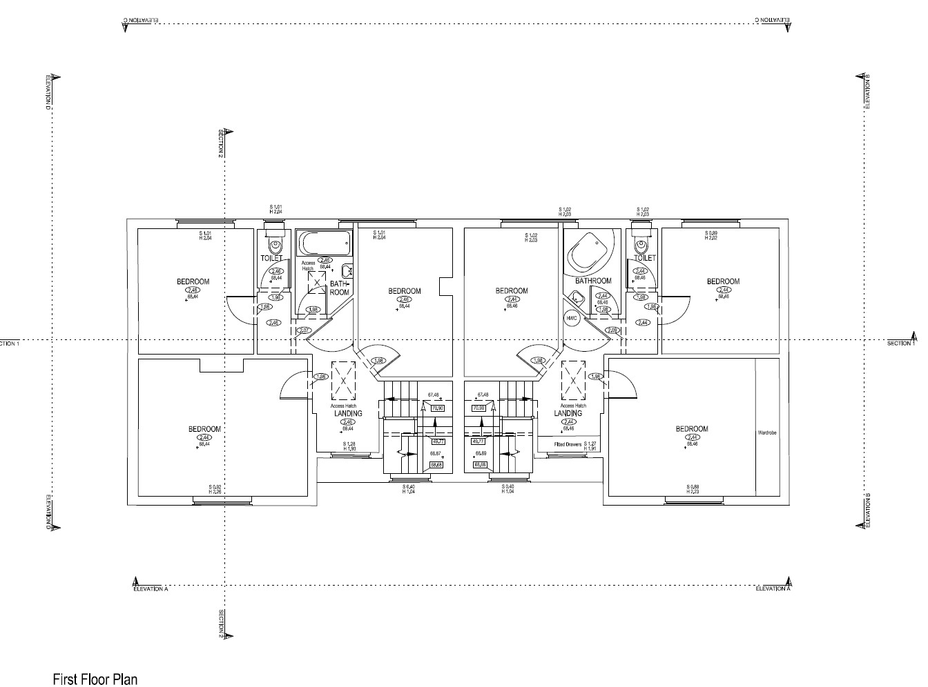
Existing First Floor Plan

Proposed Ground Floor Plans

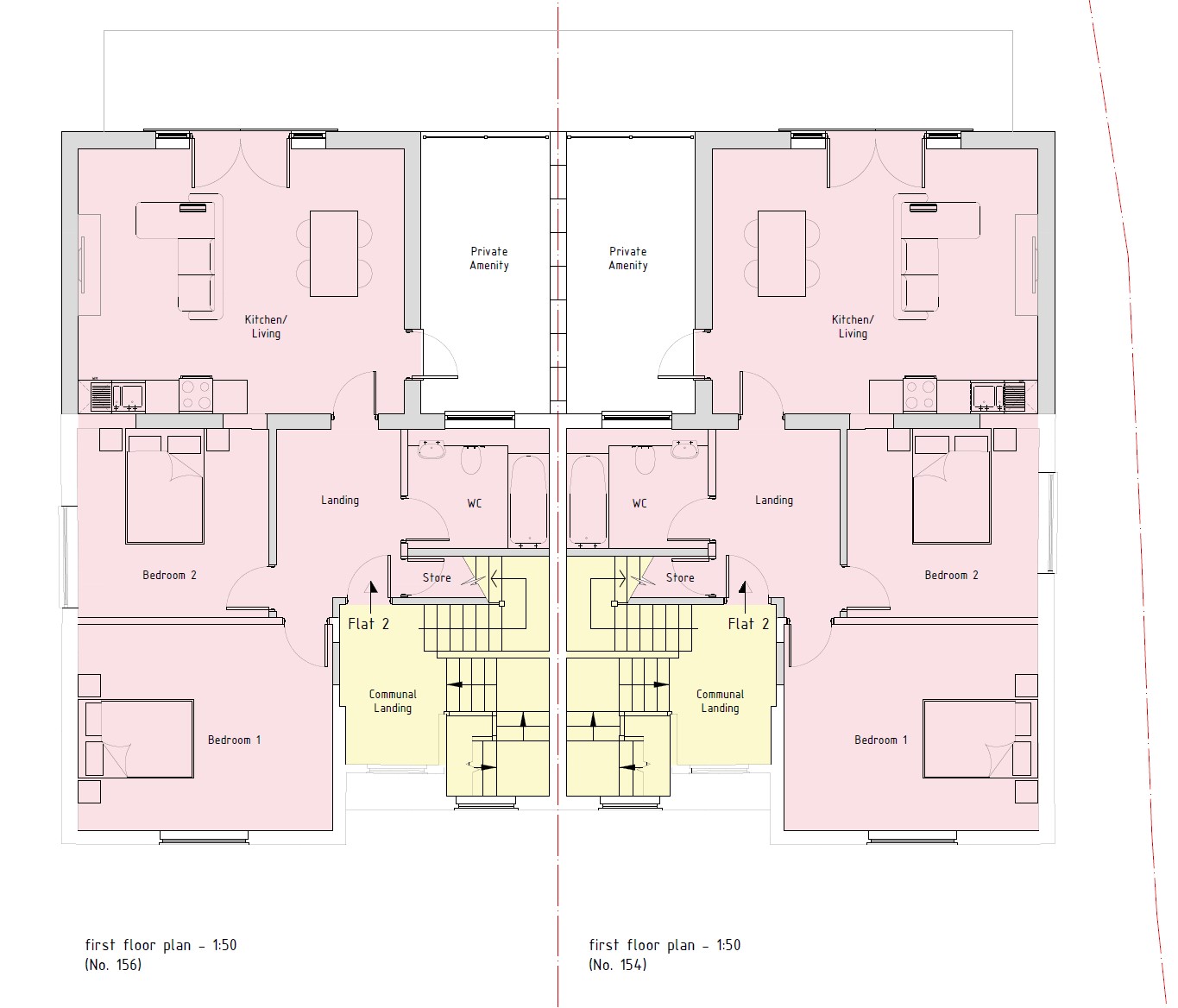
Proposed First Floor Plans

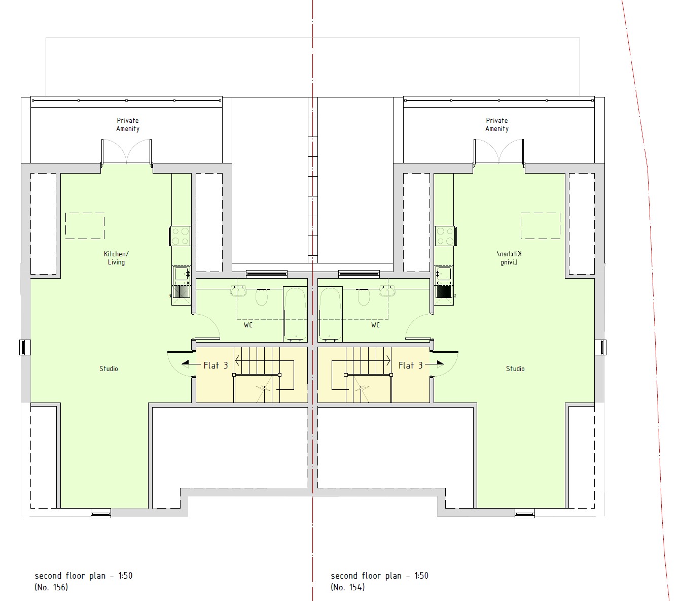
Proposed Second Floor Plans







Propsoed Ground Floor Plans

Propsoed First Floor Plans

Propsoed Second Floor Plans

Proposed Roof Plan

Proposed Rear Dwelling

Propsoed New Dwelling - Ground Floor Plan

Propsoed New Dwelling - First Floor Plan

