Change of Use - Former Bank to A1 (Pharmacy) + Erection of x4 Residential Flats Over
Project Description:
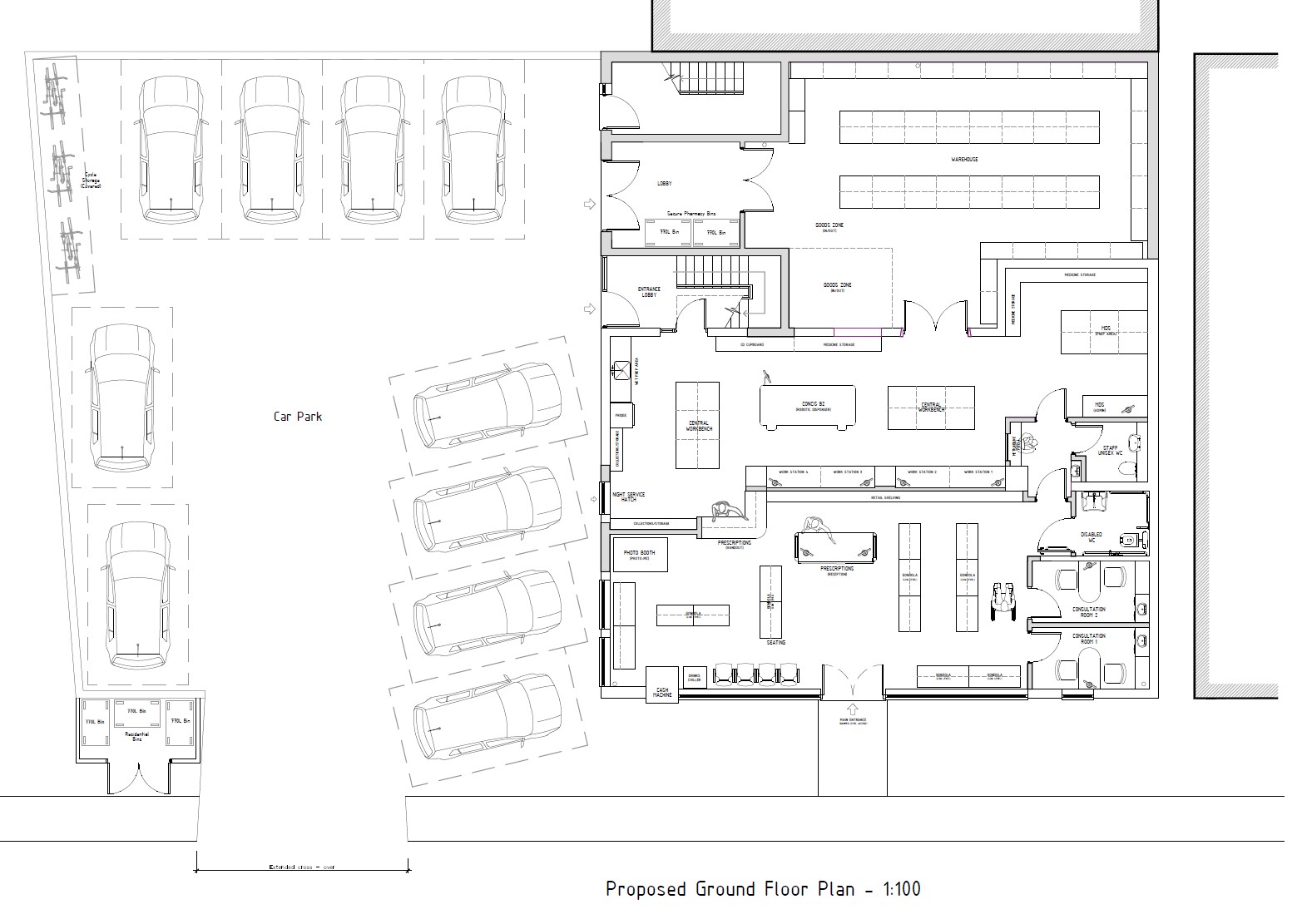
Change of use from Bank building to A1 (Pharmacy), with two storey extension to create offices on first floor & x4 residentials flats on second floor.
Project Value:
£350kServices:
RIBA Stages 1-4
Existing Front View
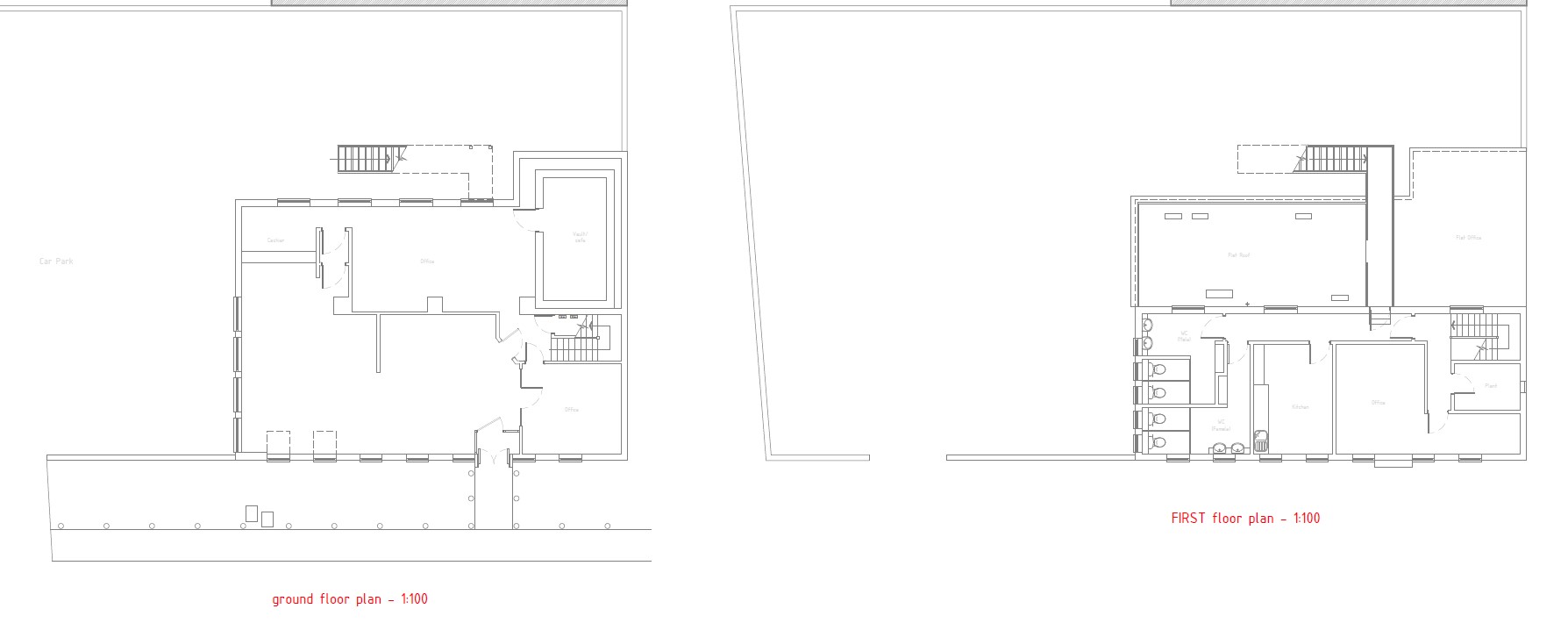
Existing Plans
Proposed Ground Floor Plan
Proposed First Floor Plan
Proposed Second Floor Plan
Proposed Front View
Proposed front/Side View











