Creativity

Innovation

Originality

Imagination

 

Salient

Salient is an excellent design with a fresh approach for the ever-changing Web. Integrated with Gantry 5, it is infinitely customizable, incredibly powerful, and remarkably simple.

Download

Project Description: 

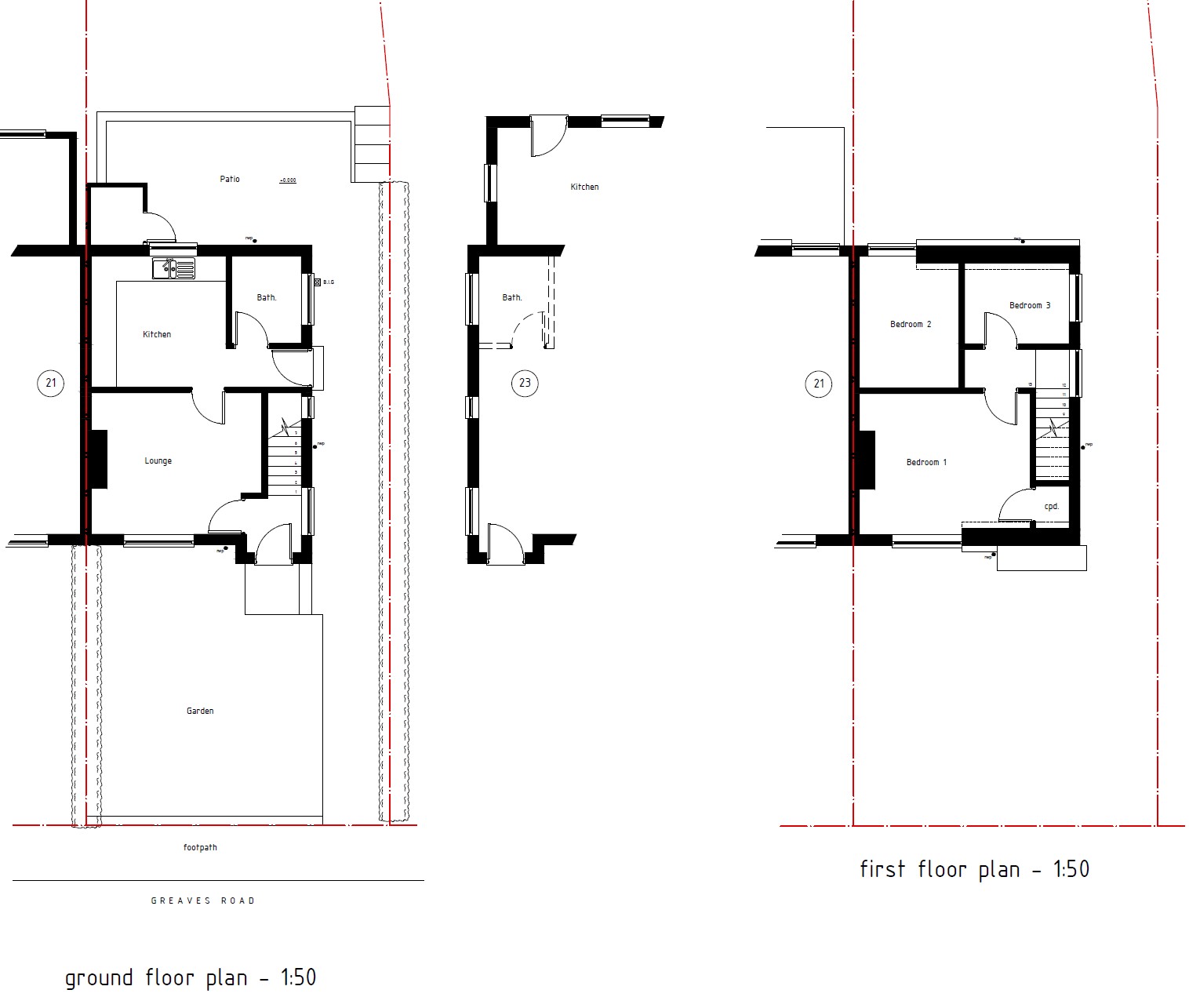
Conversion of existing dwelling into x2 residential flats

Project Value:

£120k

Services:

RIBA Stages 1-4
Existing Plans
Proposed Plans