Project Description:
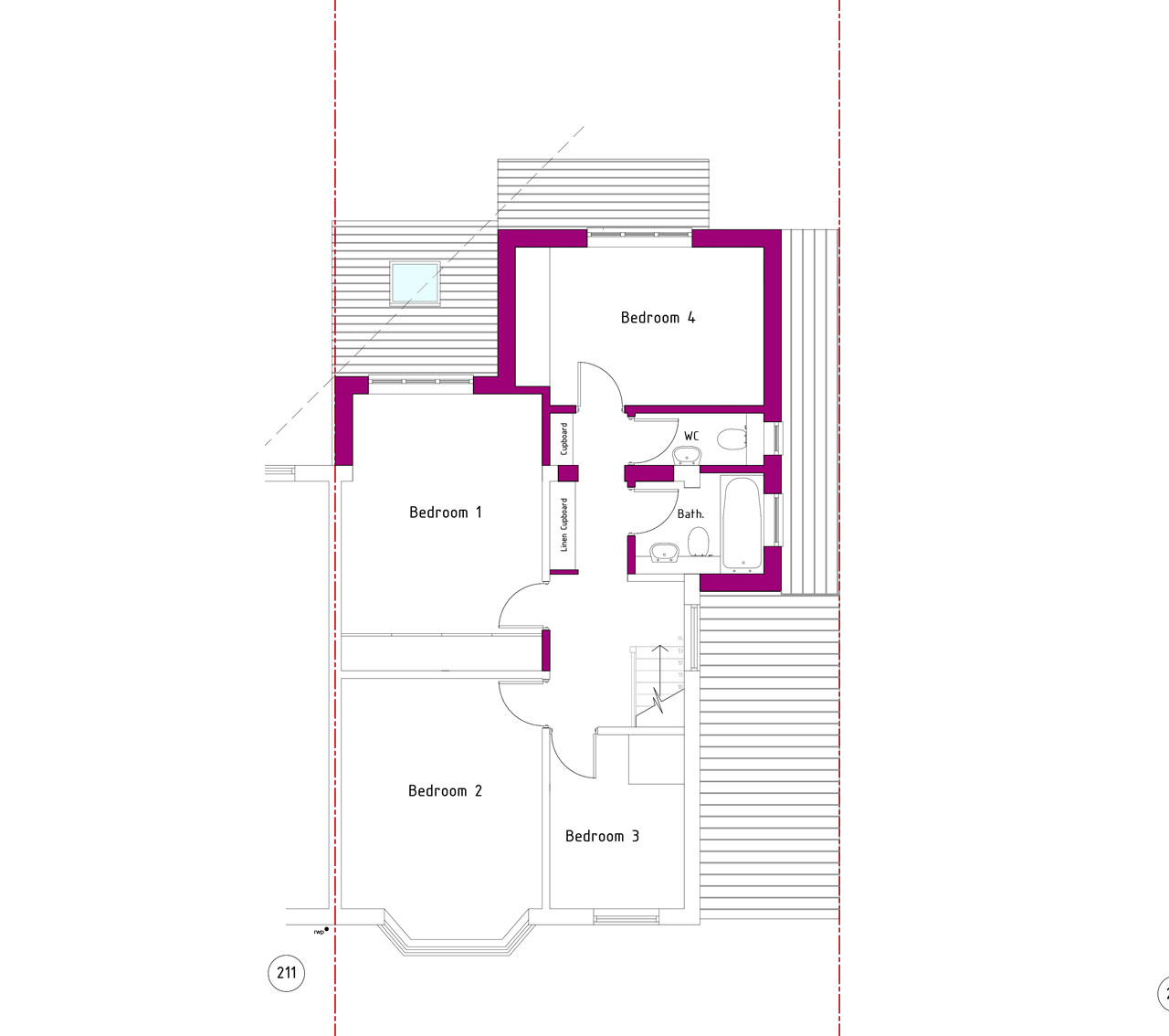
First floor rear/side extension to create an additional bedroom new family bathroom and extend existing bedroom. Side extension at ground floor provide a covered carport/passage way to the rear garden.
Project Value:
£160kServices:
RIBA Stages 1-5

Proposed Front/Side View

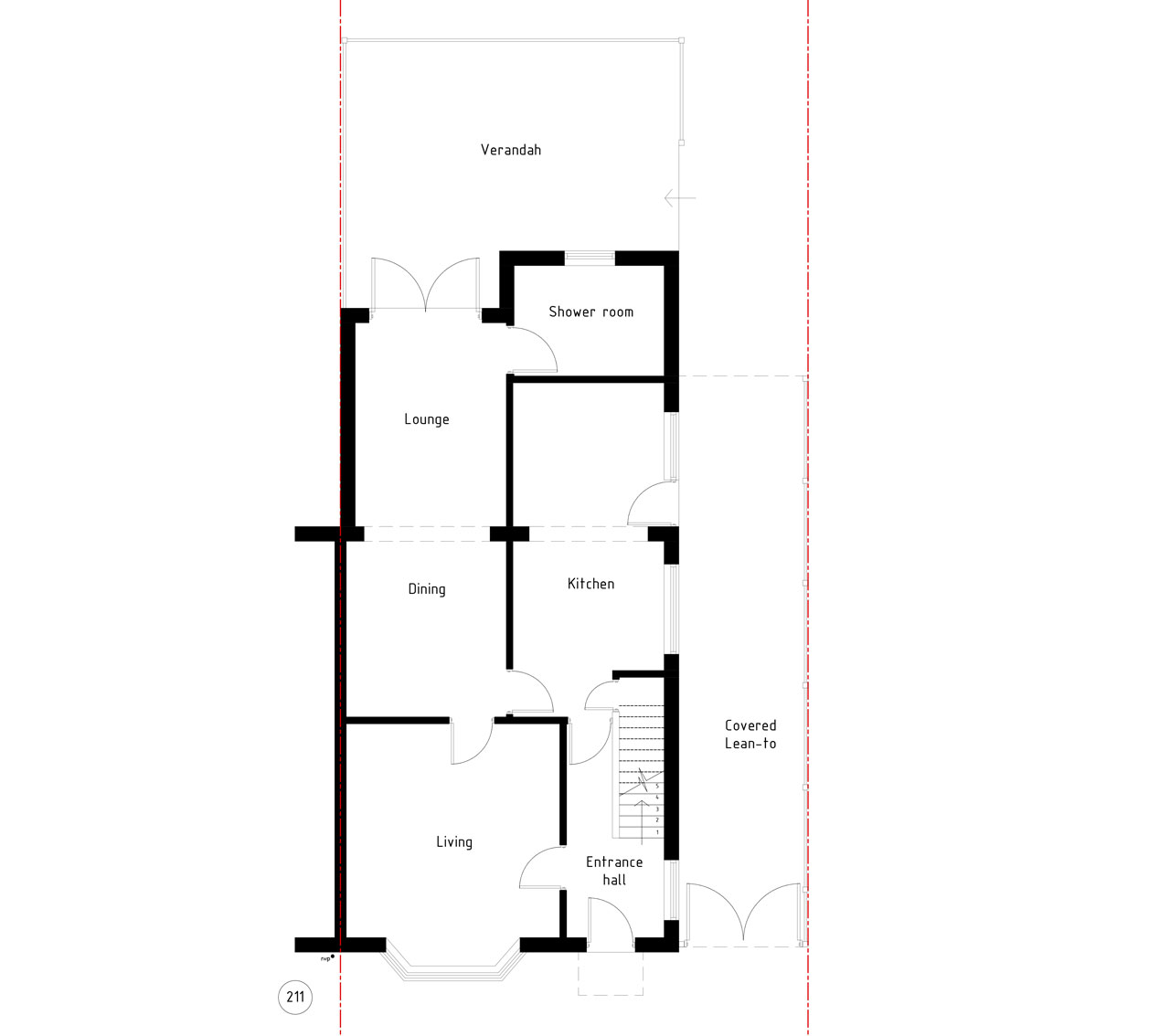
Existing Ground Floor Plan

Existing First Floor Plan

Proposed Ground Floor Plan

Proposed First Floor Plan
Proposed Rear/Side View
Proposed Rear View
Proposed Rear View