Project Description:
Double storey side extension to create a:
- Large family lounge/Dining and open plan kitchen.
- New utility room and study at the front (ground floor)
- x2 new bedrooms at first floor level
Project Value:
£180kServices:
RIBA Stages 1-5

Proposed Front View

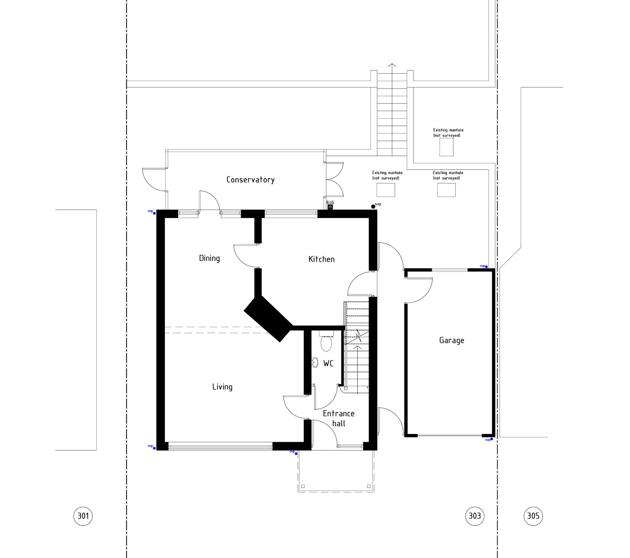
Existing Ground Floor Plan

Existing First Floor Plan

Proposed Ground Floor Plan

Proposed First Floor Plan

Proposed Front/Side View

Proposed Rear View

Proposed 3D Ground Floor Plan

Proposed 3D First Floor Plan

Proposed Rear/Side View