Creativity

Innovation

Originality

Imagination

 

Salient

Salient is an excellent design with a fresh approach for the ever-changing Web. Integrated with Gantry 5, it is infinitely customizable, incredibly powerful, and remarkably simple.

Download

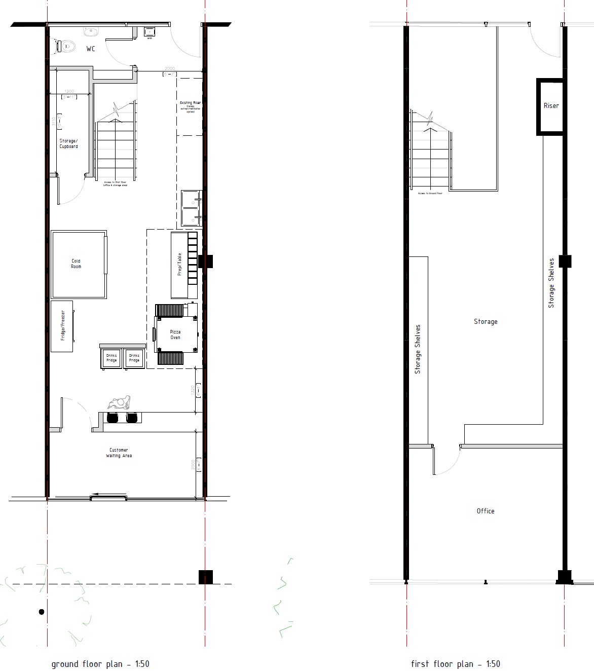
Change of Use - A5/A3 Pizza Takeaway

Project Description: 

Change of use from A1 Retail to A5/A3 Resturant/Takeaway & corporate internal branding/Interior design.

Project Value:

£75k

Services:

RIBA Stages 1-4
Proposed Plans