Change of Use - A5/A3 Pizza Takeaway
Project Description:
Change of use from A1 Retail to A5/A3 Resturant/Takeaway (merge two shops into one large premesis & rear extension. Corporate internal branding/Interior design.
Project Value:
£125kServices:
RIBA Stages 1-4
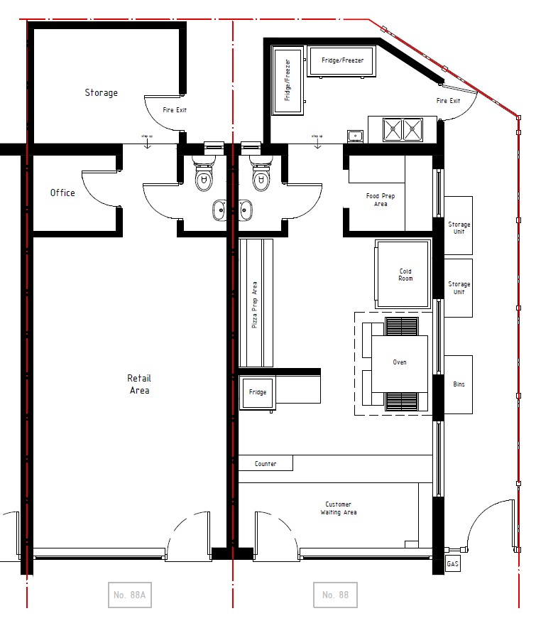
Existing Plans
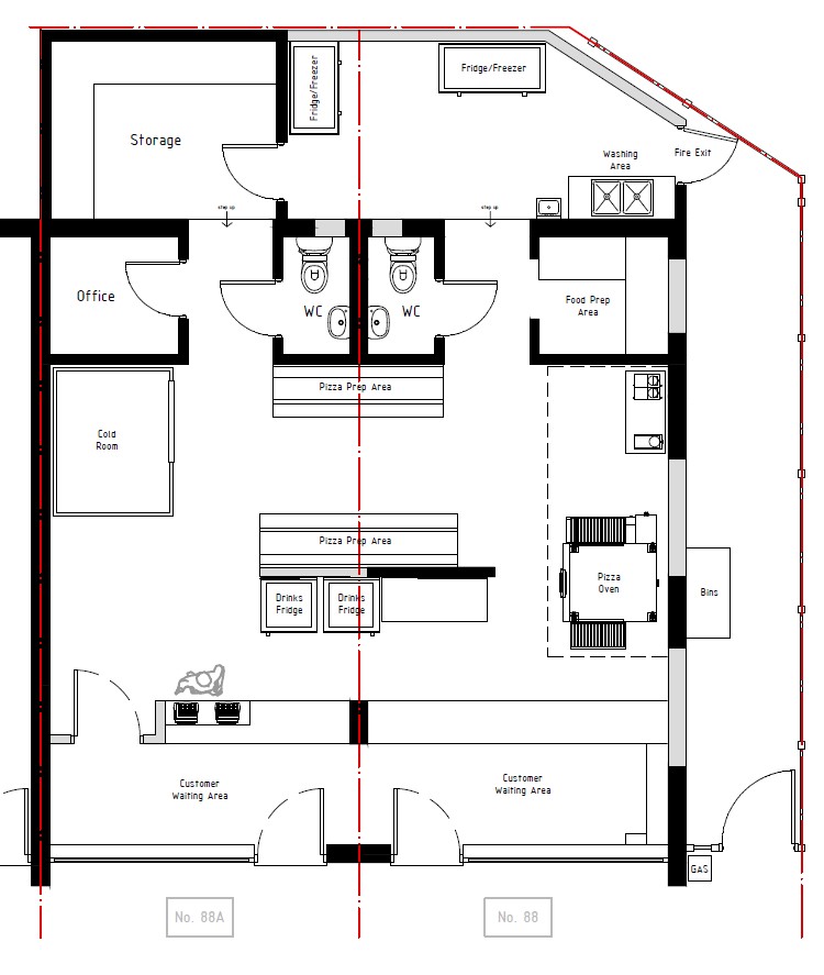
Proposed Plans








