Project Description:
Our client wanted to extend and modernise their home, so that it better suited their day-to-day lives. We worked closely with them to redesign their home and provided 3D graphic models allowing them to accurately visualise our designs.
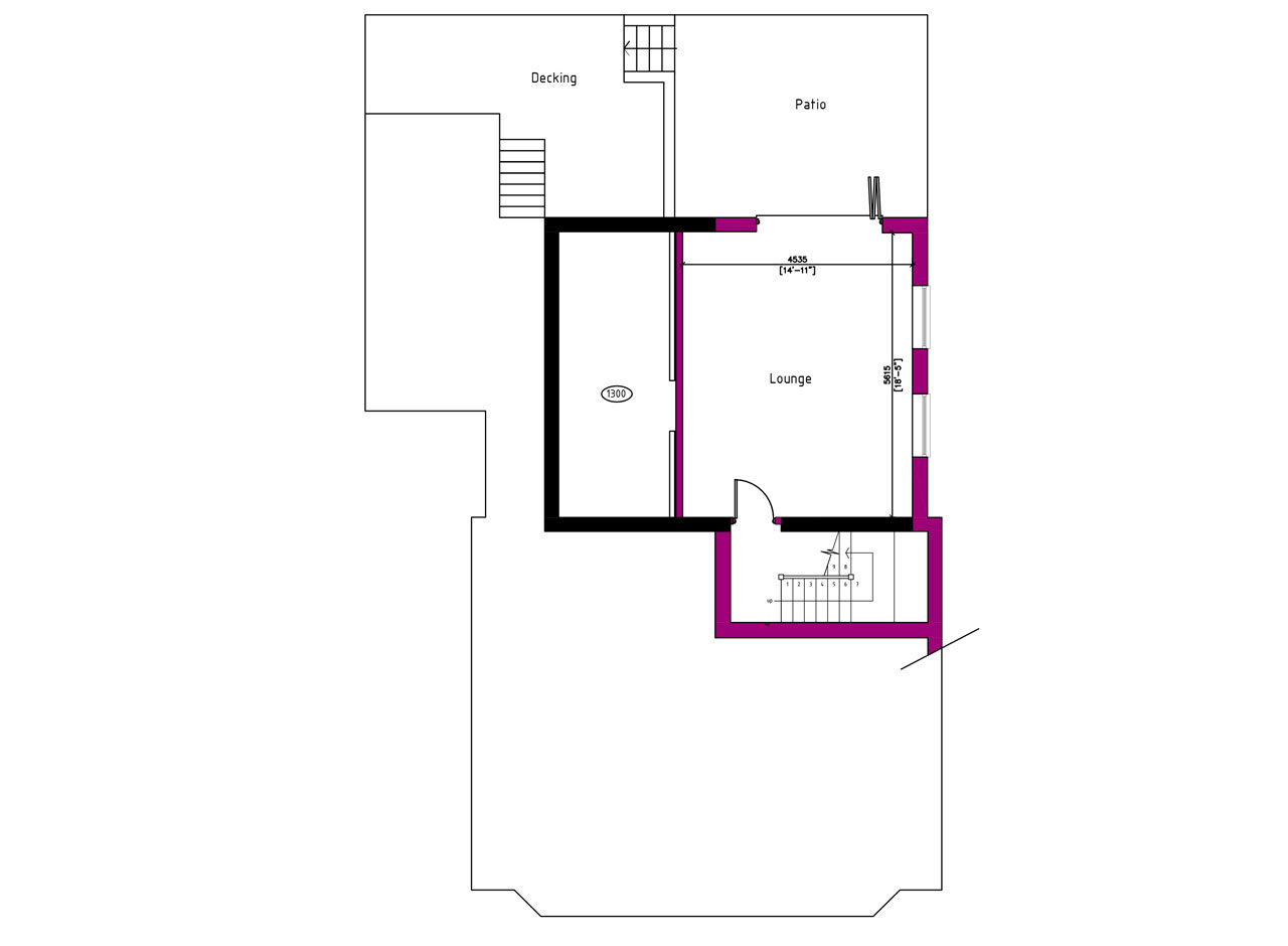
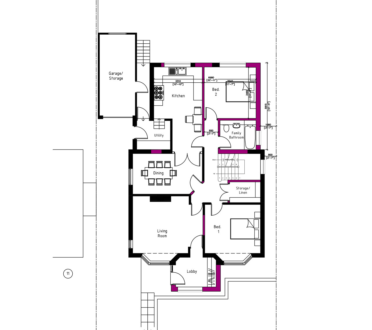
The design involved basement conversion to create a large family room with access onto patio to enjoy the garden. The ground floor layout was remodelled to provide a new large kitchen, a new dining room and a family bathroom. The existing loft was extended to provide a new master. The front of the bungalow was extended to provide a new modern front entrance porch.
Services:
RIBA Stages 1-3

Proposed Rear View

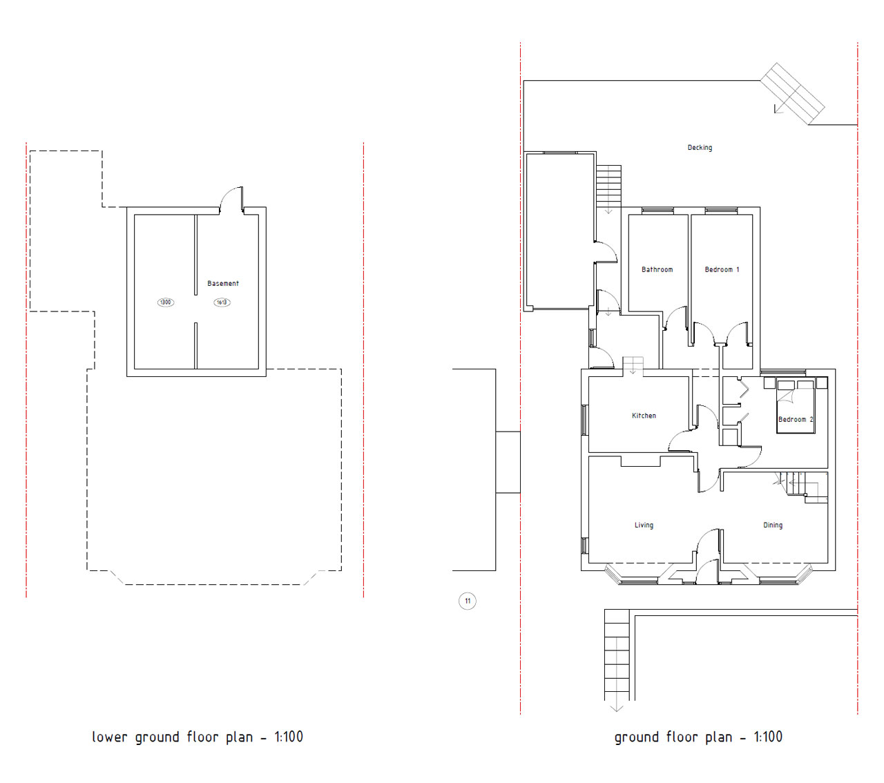
Existing Floor Plans

Existing Floor Plans

Proposed Basement Plan

Proposed Ground Floor Plan

Proposed First Floor Plan

Proposed Rear View

Proposed Rear View

Proposed Rear View

Proposed Front Extension

Proposed Front Extension

Proposed Front Extension