Double Storey Side & Rear Extension
Project Description:
Double storey side, part single storey rear extension to create a:
- Large open plan kitchen dining area with a visual connection with the rear garden.
- New study & front porch
- New utility area
- New study/multi-purpose room
- x2 new bedrooms on first floor
Project Value:
£160kServices:
RIBA Stages 1-4

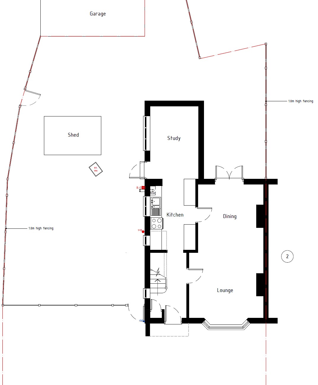
Existing Ground Floor Plan

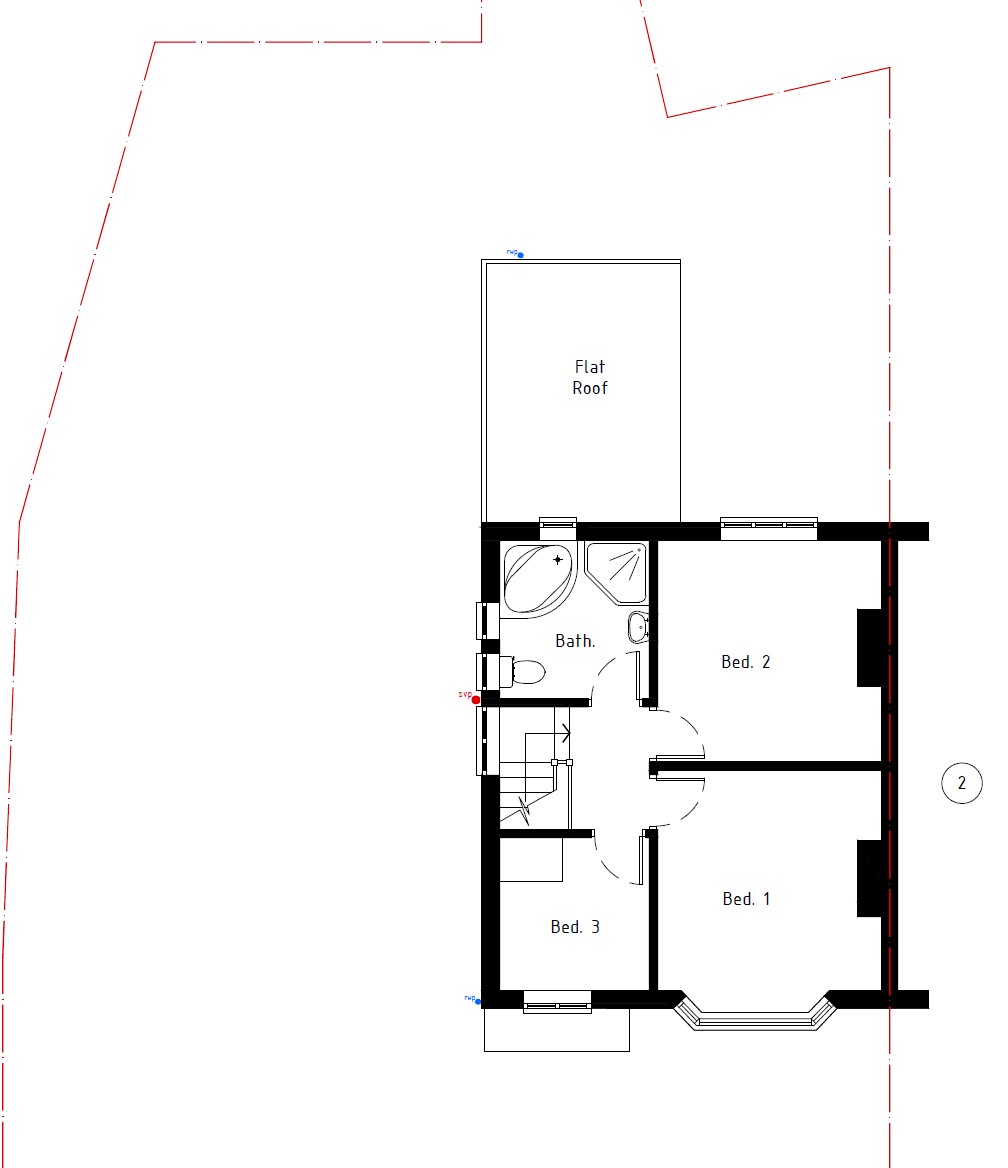
Existing First Floor Plan

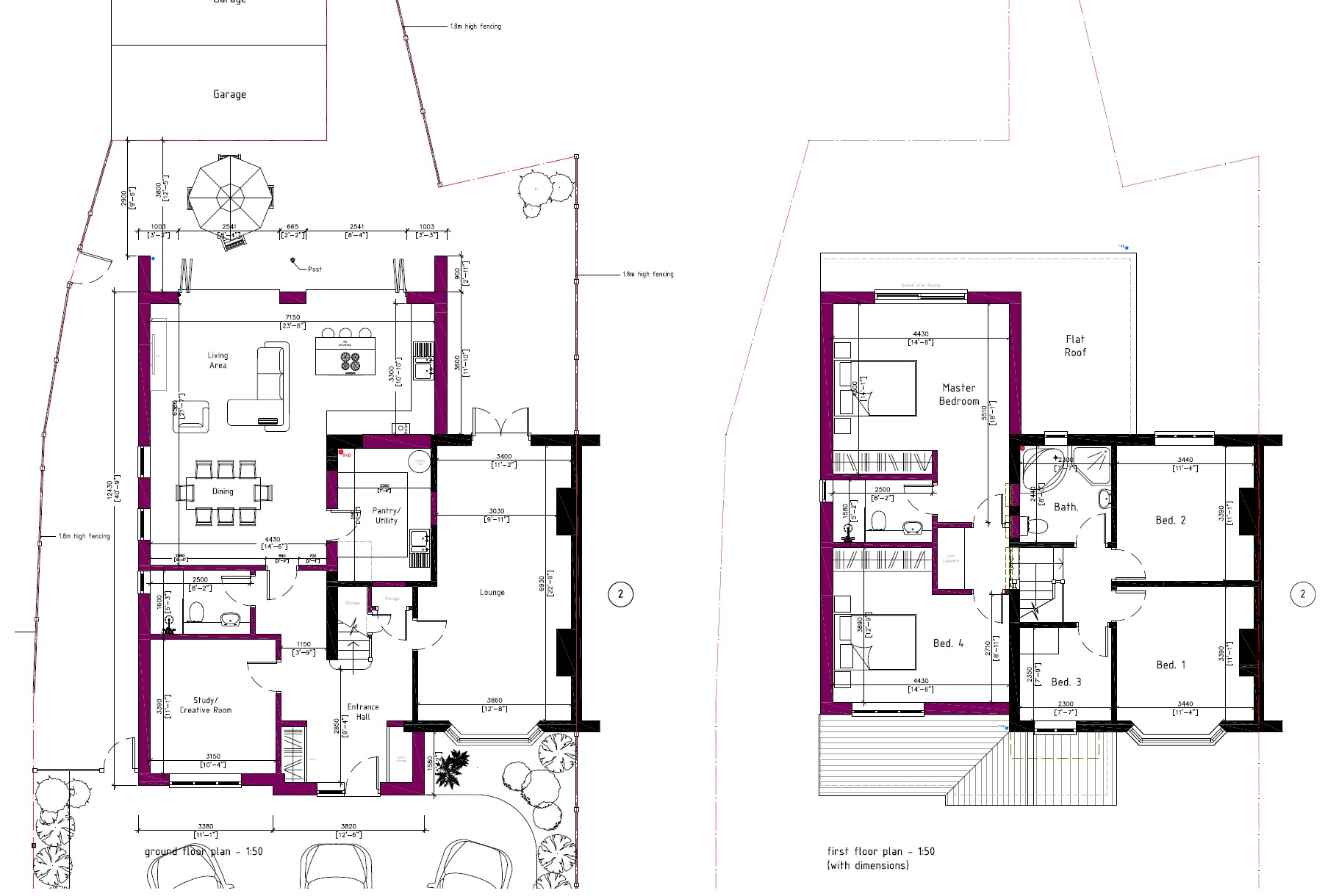
Proiposed Groudn Floor Plan

Proposed First Floor Plan

Proposed Plans (Alternative scheme)







