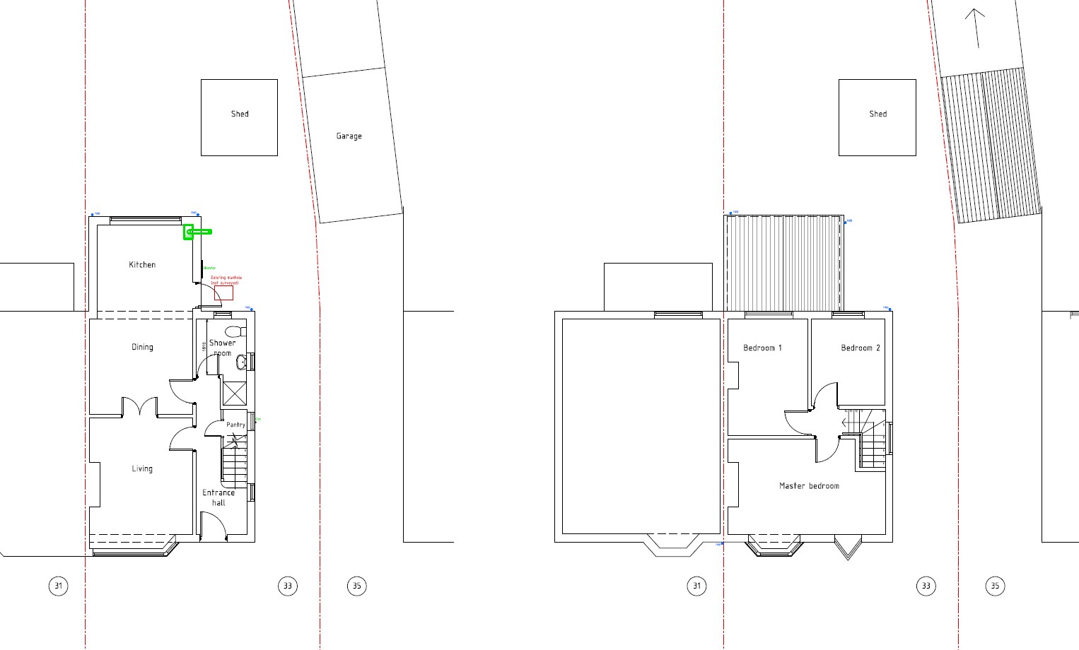
Double Storey Rear/Side Extension
Project Description:
Double storey rear/side extension to create a:
- Large open plan kitchen dining area with a visual connection with the rear garden.
- New bedroom on first floor
Project Value:
£120kServices:
RIBA Stages 1-4

Existing Plans

Proposed Plans

Proposed Ground Floor Plan

Proposed First Floor Plan




Existing Plans