Project Description:
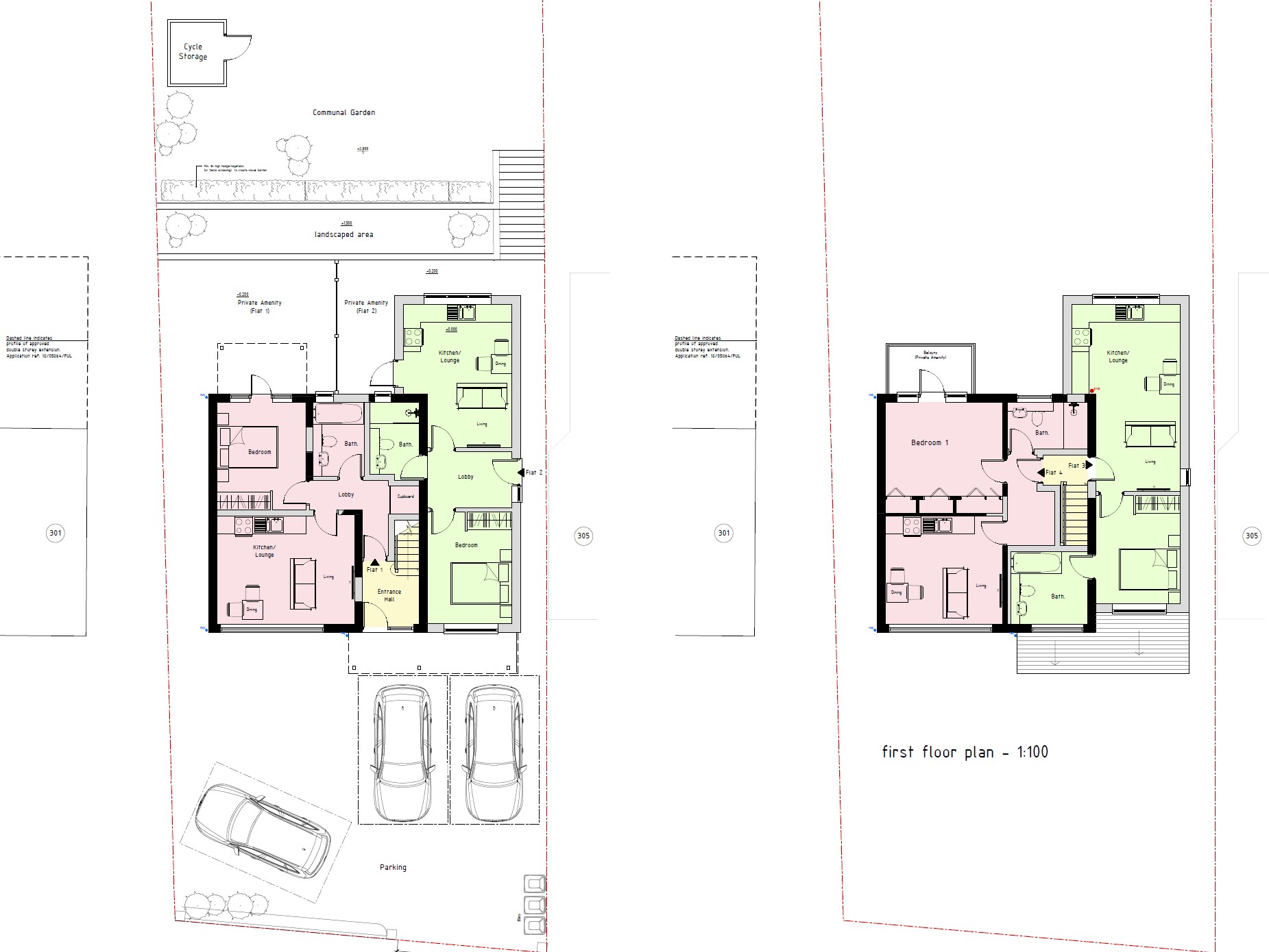
Conversion of existing dwelling into x4 residential flats
Project Value:
£175kServices:
RIBA Stages 1-4

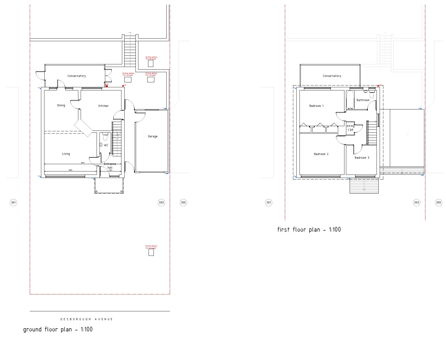
Existing Plans

Proposed Plans



Ground Floor Plan

First Flor Plan
Salient is an excellent design with a fresh approach for the ever-changing Web. Integrated with Gantry 5, it is infinitely customizable, incredibly powerful, and remarkably simple.
Download