Project Description:
Part double side & rear extension to create:
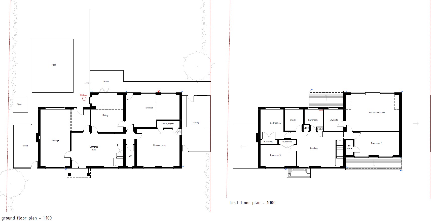
Ground Floor-
- Large kitchen/Dining area with a visual connection with the rear garden
- New study
- Games room with changing room/wet room
First Floor-
- New dressing and ensuite to master bedroom
- New office study
- x2 enlarged ensuite bedrooms
Project Value:
£200kServices:
RIBA Stages 1-3


Existing Plans

Proposed Ground Floor Plan

Proposed First Floor Plan




