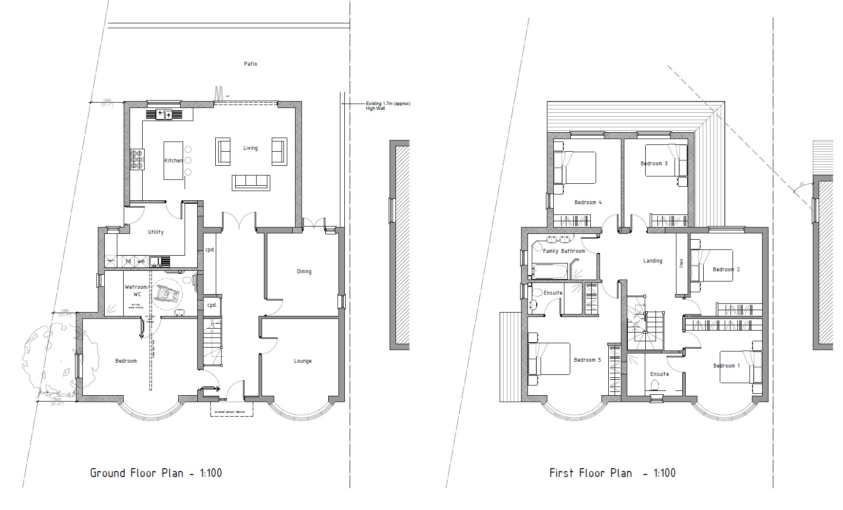
Double Storey Side & Rear Extension
Project Description:
Double storey side, part single storey rear extension to create a:
- Large open plan kitchen & family lounge with a visual connection with the rear garden.
- New dining room
- New lounge
- New study/playroom
- New utility/pantry
- Existing bedrooms extended & ensuites added
- New bedroom in loft
Project Value:
£260kServices:
RIBA Stages 1-5


Existing Front View

Proosed Ground & First Floor Plans

Proposed Second & Roof Plan

Proposed Elevations

Proposed Front View

Existing Plans