Double Storey Side & Rear Extension
Project Description:
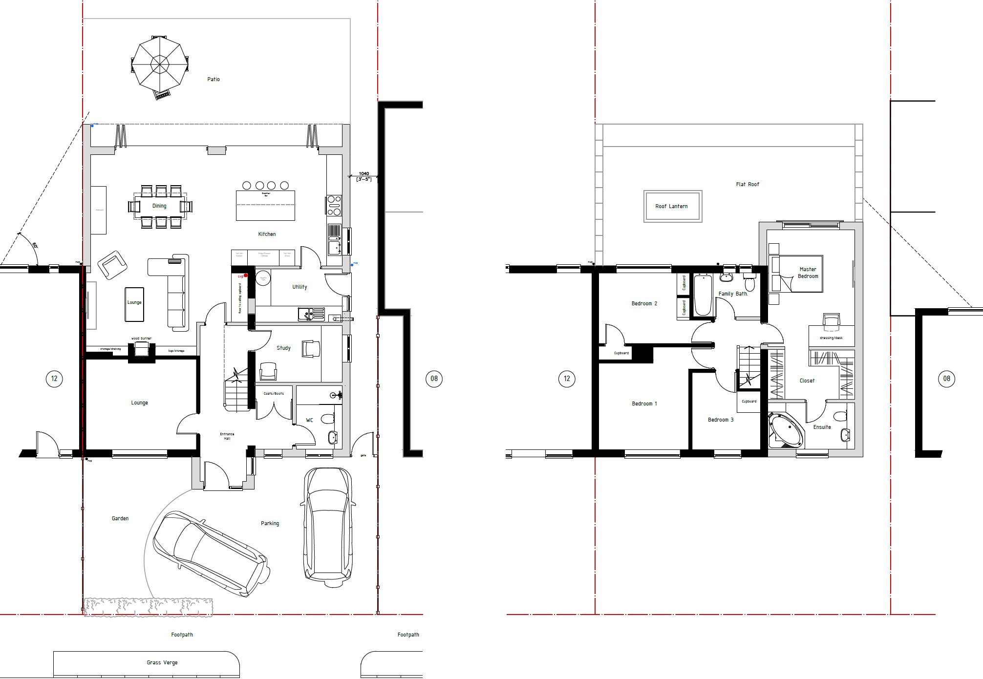
Double storey side, part single storey rear extension to create a:
- Large open plan kitchen dining area with a visual connection with the rear garden.
- New study & front porch
- New utility area
- New study/multi-purpose room
- New master bedroom on first floor (with walk-in closet)
Project Value:
£125kServices:
RIBA Stages 1-4

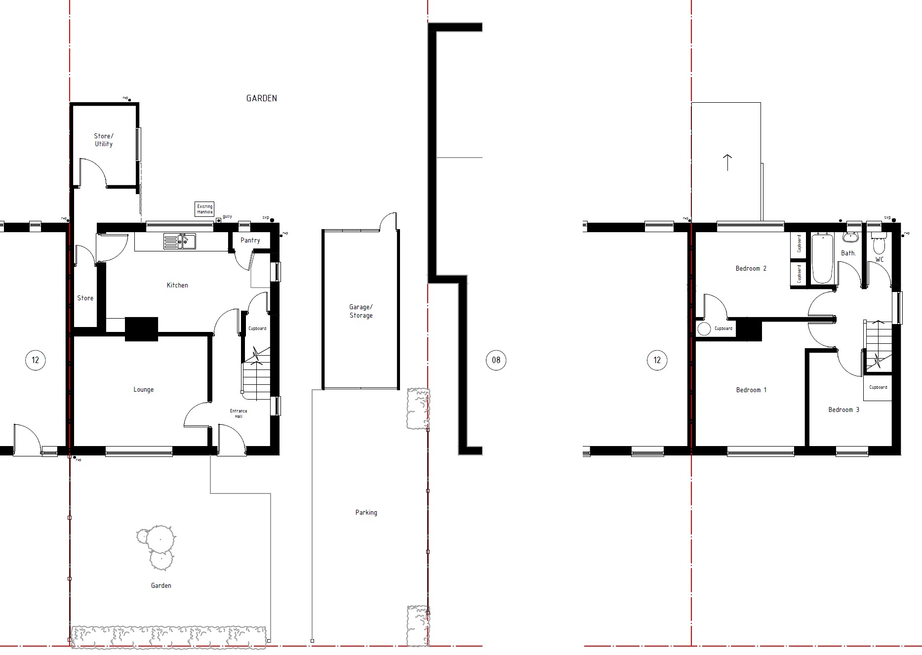
Existing Plans

Proposed Plans




Proposed Ground Floor Plan

Proposed First Floor Plan

